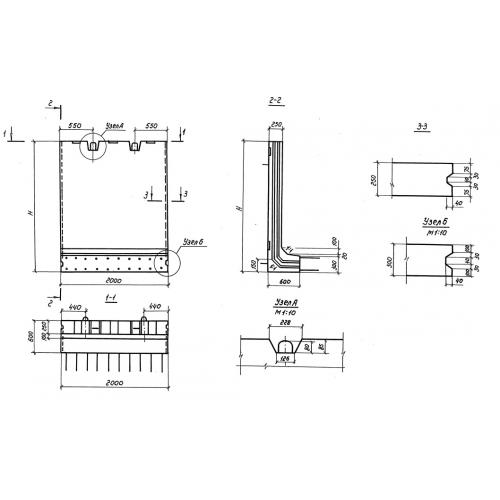
Г 25.20

Чертеж изделия:
Характеристики изделия:
ПараметрЗначение
длина2000 мм
ширина870 мм
высота2500 мм
вес3620 кг
серия3.820.1-73

Г 25.20 Г-образная конструкция для водохозяйственного строительства по серии 3.820.1-73.