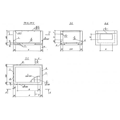
ПР-3

Чертеж изделия:
Характеристики изделия:
ПараметрЗначение
длина1900 мм
ширина1300 мм
высота950 мм
вес2500 кг
серия3.006 КР-1

ПР-3 Монолитные приямки по серии 3.006 КР-1.