БСП 9.2 балки стропильные

Чертеж изделия:
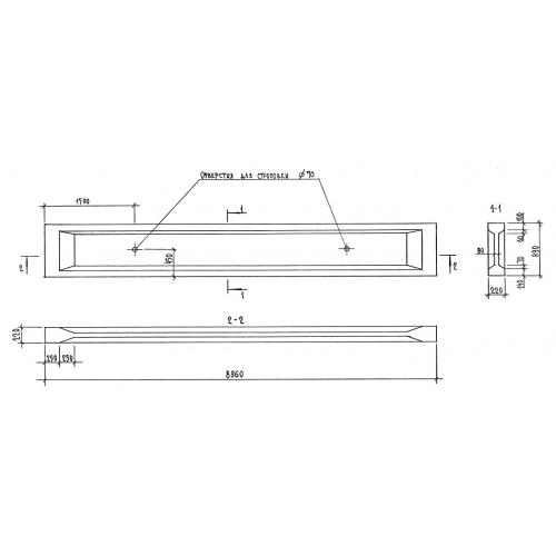
Характеристики изделия:
ПараметрЗначение
длина8960 мм
ширина220 мм
высота890 мм
масса2750 кг
нормативный документСерия 1.462.1-10/93

БСП 9.2  Балки стропильные с параллельными поясами Серия 1.462.1-10/93.