ПСЛН AV-1,2-6,1-111

Чертеж изделия:
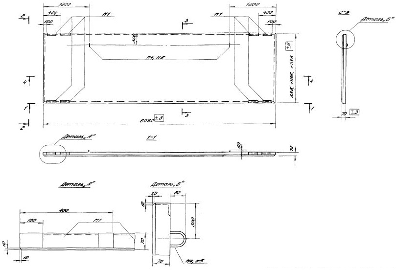
Характеристики изделия:
ПараметрЗначение
Длина6080 мм
Ширина70 мм
Высота1185 мм
Масса950 кг
Нормативный документСерия 1.432-10

Предварительно напряженные панели из легких бетонов, армированные сталью класса A-IV, по Серии 1.432-10.

ПСЛН AV-1,2-6,1-111  Рядовая панель в углу по торцовой стене при привязке продольной стены "0".