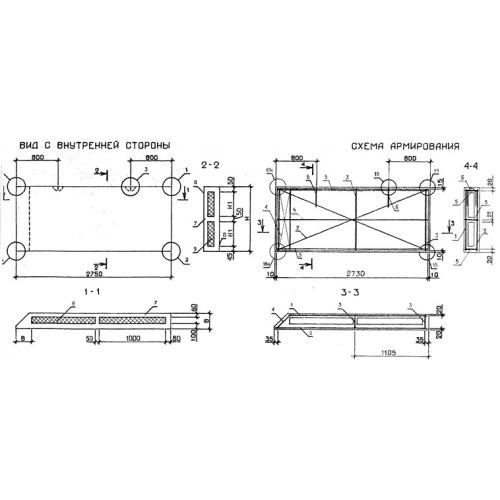
ПСТ 27.5.18.3.0 панели стеновые

Чертеж изделия:
Характеристики изделия:
ПараметрЗначение
длина2750 мм
ширина300 мм
высота1785 мм
масса1880 кг
нормативный документСерия 1.232.1-7

ПСТ 27.5.18.3.0  Панели стеновые трехслойные (панель рядовая для внутренних углов зданий) Серия 1.232.1-7.