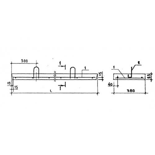
БП 13

Чертеж изделия:
Характеристики изделия:
ПараметрЗначение
длина1300 мм
ширина380 мм
высота65 мм
вес80 кг
серия1.139-1

БП 13 Плитные перемычки по серии 1.139-1.