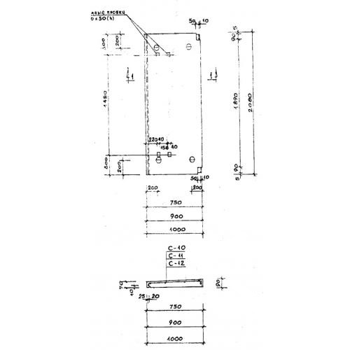
АК 21.10 плиты карнизные

Чертеж изделия:
Характеристики изделия:
ПараметрЗначение
длина2080 мм
ширина1000 мм
высота90 мм
масса425 кг
нормативный документСерия 1.138-3

АК 21.10  Плиты карнизные  Серия 1.138-3.