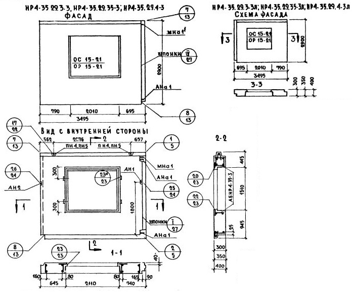
НР4-35.29.3-3

Чертеж изделия:
Характеристики изделия:
ПараметрЗначение
Длина3495 мм
Ширина300 мм
Высота2900 мм
Масса2930 мм
Нормативный документСерия 1.132-1

НР4-35.29.3-3   Наружная стеновая панель рядовая по Серии 1.132-1.