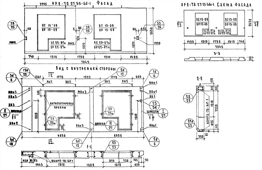
НР2-70.27.35-6бл-1

Чертеж изделия:
Характеристики изделия:
ПараметрЗначение
Длина7245 мм
Ширина350 мм
Высота2650 мм
Масса6400 мм
Нормативный документСерия 1.132-1

НР2-70.27.35-6бл-1   Наружная стеновая панель рядовая по Серии 1.132-1.