ПП 1
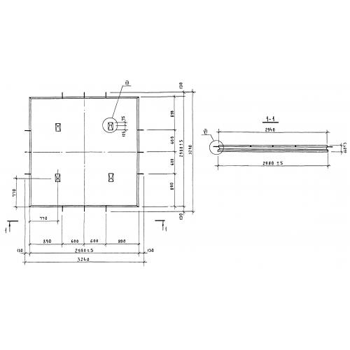
Характеристики изделия:
| Параметр | Значение |
|---|---|
| длина | 2980 мм |
| ширина | 2980 мм |
| высота | 160 мм |
| масса | 3500 кг |
| нормативный документ | ГОСТ 27108-86 |
Цена:
Рассчитать стоимостьПП 1 Пролктные плиты ГОСТ 27108-86.
| Параметр | Значение |
|---|---|
| длина | 2980 мм |
| ширина | 2980 мм |
| высота | 160 мм |
| масса | 3500 кг |
| нормативный документ | ГОСТ 27108-86 |
ПП 1 Пролктные плиты ГОСТ 27108-86.
